
KBK portal cranes
최대 3,200 kg 하중용 이동식 작업장 크레인
모바일 작업장 유닛 – 유연한 하중 지지
Demag KBK 포털 크레인은 고정식 크레인 설치가 지나치게 복잡하거나 설치 자체가 어려운 현장에 이상적인 솔루션입니다. 견고하고 평탄한 바닥에서 운행되며, 어느 방향으로든 손쉽게 이동·조작할 수 있습니다. 그 결과, 공장 내 다양한 상하차 작업은 물론 유지보수·보수 작업에도 매우 적합합니다.
Demag KBK 포털 크레인의 주요 특징
- 최대 3,200 kg까지의 하중 처리 가능
- 크레인 거더 스팬을 넓은 범위에서 조정 가능
- 수리 및 조립 작업에 최적화된 구조
- 각종 적재·하역 작업을 보조하는 데 이상적인 솔루션
Product information
Three variants
- EVP-KBK 단일거더 풀 포털 크레인 – KBK II 또는 KBK II-H 크레인 거더 적용
- ZVP-KBK 이중거더 풀 포털 크레인 – KBK II 또는 KBK II-H 크레인 거더 적용
- D-IVP 단일거더 풀 포털 크레인 – I-빔 단면 크레인 거더 (선택 옵션: 텔레스코픽 높이 조절 기능)
Practical applications
- 쉬운 이동성과 조작성
- 운송을 위해 간단히 분해 가능
- 새로운 작업 위치에서 빠르게 재설치 가능
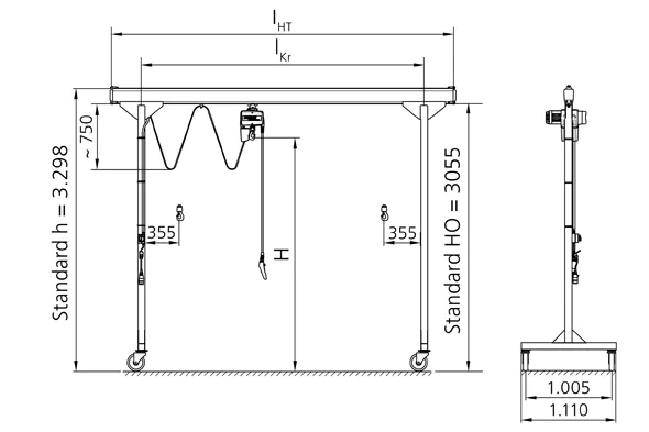
EVP-KBK single-girder full-portal crane

| Load capacity [kg] | Track gauge lKr [mm] | Girder length lHT [mm] | Max. lifting height H [mm] |
|---|---|---|---|
| 250 | 2,300 – 5,300 | 3,000 – 6,000 | 2,671 |
| 315 | 2,300 – 5,300 | 3,000 – 6,000 | 2,619 |
| 400 | 2,300 – 5,300 | 3,000 – 6,000 | 2,619 |
| 500 | 2,300 – 4,300 | 3,000 – 5,000 | 2,619 |
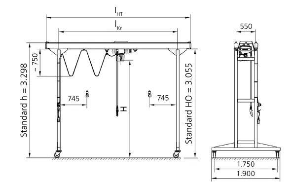
ZVP-KBK double-girder full-portal crane

| Load capacity [kg] | Track gauge lKr [mm] | Girder length lHT [mm] | Max. lifting height H [mm] |
|---|---|---|---|
| 400 | 2,300 – 5,300 | 3,000 – 6,000 | 2,844 |
| 500 | 2,300 – 5,300 | 3,000 – 6,000 | 2,844 |
| 630 | 2,300 – 5,300 | 3,000 – 6,000 | 2,755 |
| 800 | 2,300 – 4,300 | 3,000 – 5,000 | 2,755 |
| 1,000 | 2,300 – 4,300 | 3,000 – 5,000 | 2,755 |
D-IVP single-girder full-portal crane with I-beam girder

| Load capacity [kg] | Track gauge lKr [mm] | Girder length lHT [mm] | Max. lifting height H [mm] |
|---|---|---|---|
| 250 | 3,105 – 6,105 | 3,445 – 6,445 | 2,584 |
| 500 | 3,105 – 6,105 | 3,445 – 6,445 | 2,532 |
| 1,000 | 3,140 – 6,140 | 3,510 – 6,510 | 2,443 |
| 1,600 | 3,160 – 6,160 | 3,690 – 6,690 | 2,339 |
| 2,000 | 3,160 – 6,160 | 3,690 – 6,690 | 2,339 |
| 2,500 | 3,200 – 6,200 | 3,770 – 6,770 | 2,339 |
| 3,200 | 3,200 – 6,200 | 3,770 – 6,770 | 2,248 |

